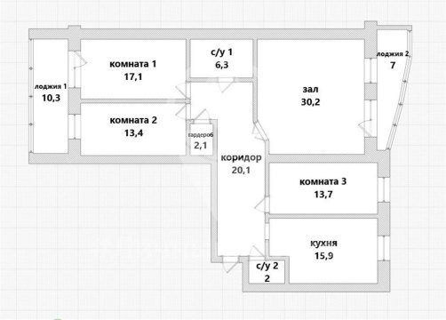
4-к квартира, 1/4 эт., 120м²

Рязань, ул Садовая, д. 23
Продается просторная 4-комнатная квартира в кирпичном малоэтажном доме, расположенном в самом сердце города.
Преимущества квартиры:
-Толщина стен 65 см., что обеспечивает отличную тепло- и звукоизоляцию.
-Квартира находится в престижном районе города, что обеспечивает легкий доступ ко всем необходимым объектам инфраструктуры.
-Не угловая, что гарантирует дополнительную тишину и тепло. Высокий цоколь обеспечивает дополнительную звукоизоляцию и защиту от внешних шумов.
-Выполнен качественный ремонт с использованием современных материалов. Встроенные шкафы и многофункциональная кухня создают дополнительное удобство и функциональность.
-В квартире электрический водонагреватель, индивидуальное отопление (установлен 2-контурный котел), что позволяет регулировать температуру в помещении по своему усмотрению и значительно сэкономить на коммунальных платежах. Имеется гардероб и два санузла, что добавляет комфорта в повседневную жизнь.
-Две просторные лоджии предоставляют возможность использовать, как дополнительную площадь к квартире, одну из которых можно использовать как летнюю веранду и наслаждаться свежим воздухом, не выходя из дома.
-В стоимость квартиры входит машиноместо под домом, что является большим плюсом для автовладельцев.
-В шаговой доступности находятся все необходимое: остановки общественного транспорта, Театральная пл., Рязанский дворец детского творчества, Рязанская областная филармония, больница, Лыбедский бульвар, скверы, театр кукол, Рязанский государственный цирк, Лесопарк, пл. Ленина, торговые центры, магазины, школы, детские сады и другое.
-В стене зала заложен дымоход от строителей, это позволит установить камин, что добавит уюта и тепла в зимние вечера.
-Большая часть мебели останется новому собственнику, что позволит сэкономить время и средства на обустройство нового жилья.
Эта квартира – идеальный выбор для тех, кто ищет комфортное и удобное жилье в центре города. Не упустите возможность стать владельцем этой замечательной квартиры!
Тип предложения Продам
География Рязань, Рязанская область
Тип объекта
Вторичный рынок
Адрес
ул Садовая, д. 23
Комнат
4
Планировка
Стандартная
Тип комнат
Раздельные
Общая площадь
120,80 м2
Жилая площадь
74,40 м2
Площадь кухни
15,90 м2
Этаж
1
Этажей в доме
4
Санузел
Несколько санузлов
Балкон
Более одного
Ремонт
«Евроремонт»

Все ваши сообщения мы читаем и все пожелания учитываем, но, к сожалению, ответ не гарантируем.

Если вы расчитываете получить ответ, не забудьте заполнить это поле.
Отправить

Сообщение будет отправлено на электронную почту автора объявления. Ваш электронный адрес будет ему доступен для ответа.

Отправить
Отправить